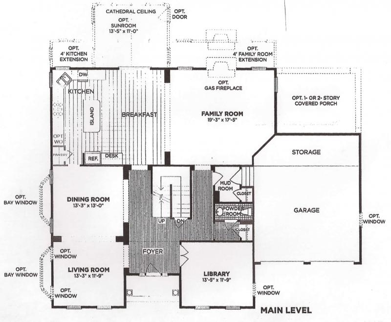
The Pine Ridge is a tall classic home, with many options for expansion and modification. Let JMB HOMES create the perfect home for you.